Guide Price £1,100,000

Site With Planning Permission, Maidenhead

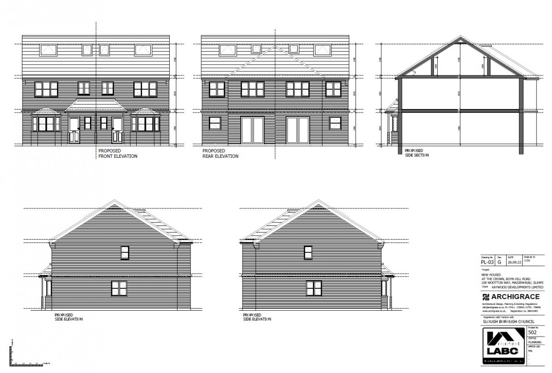
An exciting development opportunity to acquire a parcel of land with full planning permission granted for the construction of four well-proportioned three-bedroom family homes, Planning Reference Number 24/00630/FULL. . The site is conveniently located in the sought-after Altwood area within a short walk to local amenities, popular schooling and within easy reach of Maidenhead town centre and train station with Elizabeth Line trains direct into central London. The approved scheme offers a thoughtfully designed residential development, ideal for owner-occupiers or as an attractive investment opportunity offering strong potential for resale or rental income.
  • SITE WITH PLANNING PERMISSION
  • SCHEME OF 4 WELL-DESIGNED FAMILY HOMES
  • SOUGHT AFTER ALTWOOD AREA
  • CLOSE TO SCHOOLS
  • NEARBY LOCAL AMENITIES
  • EASY REACH OF TOWN & STATION
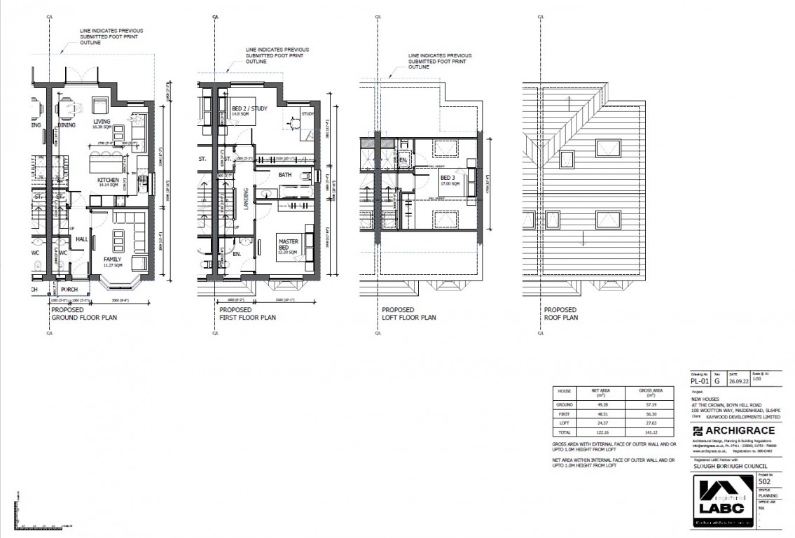
Floorplan for Site With Planning Permission, Maidenhead