£575,000

De Havilland Place, White Waltham Village, Maidenhead

£13,200 Mortgage Contribution Incentive

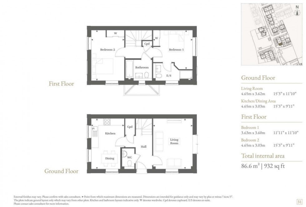
(Subject to T's & C's) A stylish TWO DOUBLE BEDROOM end of terrace home of approximately 932 sq/ft completed to an extremely HIGH STANDARD OF FINISH and specification by MULTI AWARD WINNING Shanly Homes. The property offers a spacious living room with French doors leading to the garden with lawn and patio area and a separate kitchen/dining room with luxurious quartz worktops and Siemens integrated appliances. Upstairs is a main bedroom with fitted wardrobes and en-suite shower room and a second double bedroom with fitted wardrobes and a contemporary family bathroom. The property provides two allocated parking spaces and electric vehicle charging point and is conveniently located in the village of White Waltham within walking distance of local pubs.Predicted EPC rating - B.

SHOW HOME open daily, 10am to 5pm. Contact Braxton on 01628 674234 to book an appointment to view.

NB. The garden and internal photos are of the Show Home - Plot 1
NB. £13,200 Mortgage Contributions are Based on £2,200 per calendar month mortgage repayments for 6 months based on a 10% deposit & 90% LTV and may depend on circumstances.
  • Separate kitchen/diner with quartz surfaces & Siemens appliances
  • Two double bedrooms with built-in wardrobes
  • Underfloor heating to both floors
  • Two allocated parking spaces
  • Energy efficient air source heat pump
  • Private garden with Indian Sandstone patio
  • Built by award-winning Shanly Homes
  • 10 year New Build Warranty
Floorplan for De Havilland Place, White Waltham Village, Maidenhead Floorplan for De Havilland Place, White Waltham Village, Maidenhead