£1,250 PCM, Fees Apply

Powney Road, Maidenhead, Berkshire

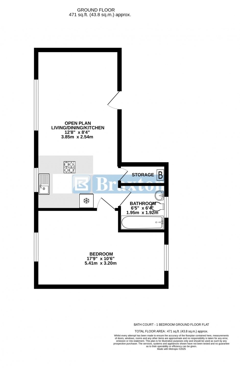
Smartly presented one-bedroom ground floor apartment set within a gated development just a short walk from Maidenhead town centre and station. The property offers a spacious open-plan living area with a modern fitted kitchen, a stylish bathroom, gas central heating, wood flooring, and allocated parking for two cars. Residents also benefit from access to well-maintained communal gardens, making this an ideal home for professionals seeking convenience, security, and comfort. Council Tax Band C
  • Ground Floor
  • Excellent Condition
  • One Bedroom
  • Gas Central Heating
  • Double Glazing
  • Gated Development
  • Parking Communal Grounds
  • Spacious
  • Council Tax Band C
Floorplan for Powney Road, Maidenhead, Berkshire