Guide Price £4,750,000

Cherry Garden Lane, Maidenhead

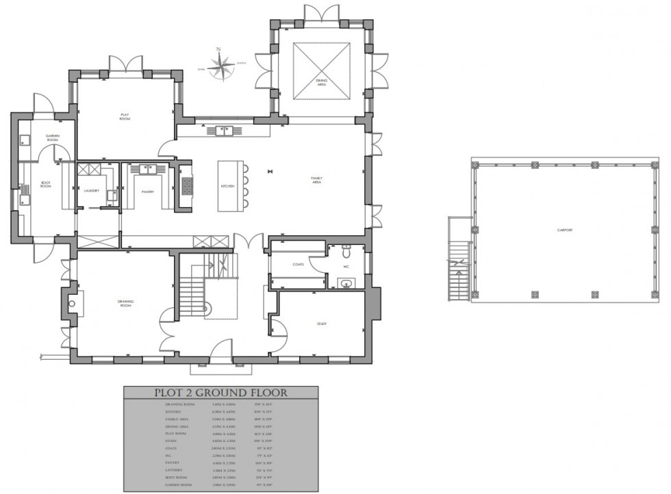
A classically designed Georgian Style residence providing 5,975 sq. ft of exceptional family living space, set within 1.7 acres of landscaped gardens, completed to a high level of finish & specification with meticulous attention to detail by award winning Westbourne Homes. The ground floor offers refined yet comfortable living spaces and upon entering the property, you walk into a stunning reception hall with a galleried landing leading to the principal main bedroom with its impressive bespoke dressing room, balcony, and exquisite en-suite bathroom with free standing Charlotte Edwards bath, five further bedrooms and five bathrooms (four en-suite). The “hub of house” is a bespoke Charles York kitchen/family room, featuring natural marble work surfaces, Villeroy & Boch double Belfast sink with Quooker boiling water tap, Lacanche range cooker and integrated Siemans appliances which leads to generous bespoke pantry with oak-stained wine storage, utility room and boot room. The kitchen opens into a beautifully designed orangery/dining area and playroom, with access to the drawing room from the reception hall with central feature wood burning stove and marble surround, all of which have direct access onto the extensive landscaped garden. Further reception rooms include a separate study and second-floor media room. A triple oak framed car port with EV charger and annexe above, featuring a shower room and kitchenette is accessed via the extensive private driveway.


Some Internal images are of the show home(Fjord Barn)


The property enjoys far reaching views to the front over open farmland and occupies a glorious, gated position close to Littlewick Village Green. For your personal appointment to view, please call 01628 674234.
  • Countryside views
  • Exceptional Finish & Specification
  • Bespoke Charles Yorke Kitchen
  • Marble Kitchen Work Tops
  • Traditional Bathroom Suites
  • Solid Oak/Panel Painted Internal Doors
  • Cat 6 Cabling Suitable For Sky/Smart TV Subscriptions
  • Oak Framed Triple Car Port With Annexe Above
  • Gated Development
  • Generous Private Gardens
Floorplan for Cherry Garden Lane, Maidenhead Floorplan for Cherry Garden Lane, Maidenhead Floorplan for Cherry Garden Lane, Maidenhead